001DIO
En bref
La MO avait des difficultés à louer un appartement de rendement et souhaitait une réflexion générale sur les possibilités de rénovations.
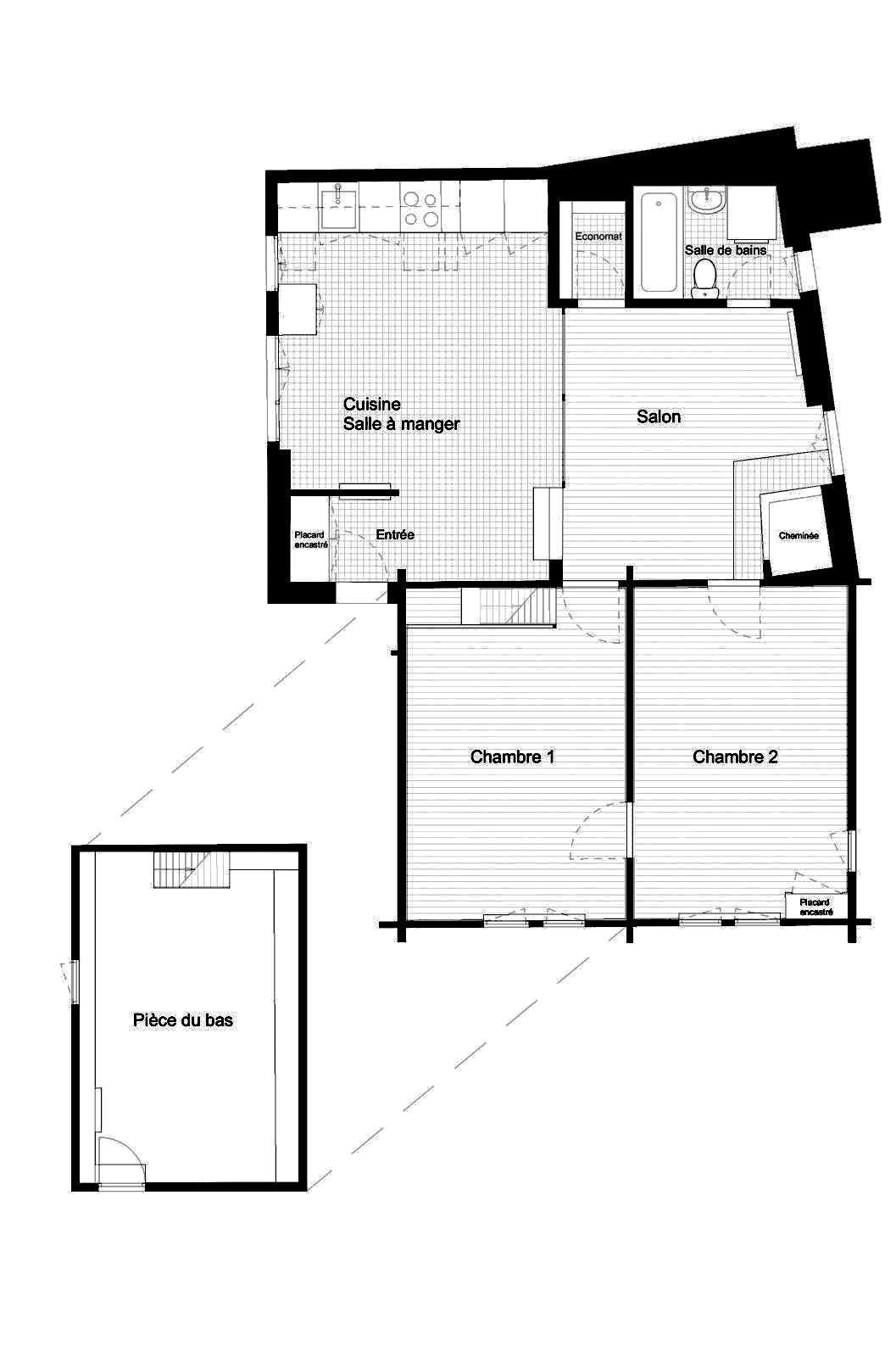
Plan de l'existant
Appartement de 4.5 pièce en duplex

Le logement se trouve dans une maison vernaculaire à deux appartements, typique du Valais central, avec des murs en maçonnerie en amont et le volume aval en bois. L'appartement a comme point positif d'être situé dans un environnement très calme et verdoyant, dans un village paisible et pittoresque. Depuis la cuisine, on accède à une grande terrasse et à une pelouse qui sont des espaces extérieurs de qualité. Les anciennes poutres en bois ont été conservées lors de la rénovation des années 1980, ce qui donne du cachet à l'espace.
L'appartement est composé comme suit : entrée privée avec placard intégré qui mène à la grande pièce cuisine et salle à manger ainsi qu'au salon, un demi-niveau plus haut. Le salon possède une grande cheminée et dessert la salle-de-bains, un économat et les deux chambres du haut. Depuis la chambre à l'ouest, on accède à la pièce du rez-de-chaussée qui a sa porte sur l'extérieure.
Identification des points qui peuvent freiner les futurs locataires : l'obligation de passer par une chambre ou par l'extérieur pour utiliser la pièce du bas comme chambre. Le salon est difficilement aménageable, dû à toutes les portes que la pièce dessert et les espaces de circulations qui sont importants. La salle-de-bains est plutôt encombrée, la cuisine est ancienne. Le demi-niveau du salon permet aux caves dessous d'être utilisée, néanmoins, la hauteur sous plafond est basse, d'1,9 mètre et un peu moins sous chaque poutre.
Le concept
Avec un bien comme celui-là il est évidemment impossible qu'il puisse plaire à tout un chacun. Il n'est pas pertinent de modifier tout l'appartement de manière extensive pour que son niveau de confort soit comparable à un appartement neuf, on perdrait tout le cachet et la singularité du bien. Rappelons qu'un élément vu comme un défaut par certains peut être perçu comme une qualité pour d'autres. Par exemple, pour une famille avec deux enfants qui souhaitent chacun leur chambre, l'accès restreint à la pièce du bas est péjoratif, mais pour un couple qui fait du télétravail, à l'inverse, c'est la disposition parfaite.
La première étape qui est proposée est de rénover et moderniser la cuisine ; changer les appareils vétustes et donner un bon coup de peinture. Ensuite, si l'appartement ne se loue pas, la deuxième étape est de rénover la salle-de-bains.
L'entrée dans le 4.5 pièces sur la gauche dans une alcove. Devant la fenêtre triple qui mène sur la terrasse ensoleillée la zone salle à manger. On remarque les murs verts peints par les précédents habitants.
La cuisine est vieillote avec des plaques en fonte, un four vétuste et crédence à motifs. L'alternance entre les portes de placards en bois foncé et les appareils blancs alourdit la perception de l'espace.
Le projet
Proposition de rénovation de la cuisine et deux variantes pour la salle-de-bains. En jaune : à démonter, en rouge : à implémenter

Pour la cuisine, l'idée est de venir séparer la zone de préparation des repas de l'espace salle-à-manger avec la création d'un bar. Les aménagements des éléments contre le murs nord est déjà organisé de manière efficace. Le plan de travail est remplacé, l'évier et le four sont changés. Les plaques en fonte font place à un vitrocéram. Le carrelage et la crédence à motifs sont changés et un coup de peinture est donné aux murs verts, aux cadres des fenêtres et au plafond.
Les deux variantes de salle-de-bains se basent sur le même principe : phagocyter l'économat contre la cuisine pour agrandir la pièce d'eau. Le deuxième point positif est la suppression d'une des portes qui donnent sur le salon. Cela augmente les possibilités d'ameublement, car les circulations sont simplifiées.
La pièce d'eau agrandie permet l'ajout d'un sèche-linge à la machine à laver préexistante. La hauteur sous plafond de la pièce permet, selon le type d'appareil de les disposer en colonne de lavage. Il était demandé de garder la baignoire dans la disposition de la salle-de-bains. Ayant peu d'informations sur la rénovation des années 80, creuser dans le mur en maçonnerie peut amener des surprises, ce qui a été écarté.
Vue sur la nouvelle cuisne

Avec les portes de placards repeintes, murs et carrelages en blanc uni et de nouvelles poignées, la cuisine fait déjà un saut dans le futur. Mais c'est l'ajout du plan de travail supplémentaire qui contemporanéise la pièce.
L'ergonomie lors de la préparation des repas est améliorée avec la disposition de la cuisine en deux bandes parallèles. Le bar amène une transition fluide entre la zone de préparation et de prise des repas.
Avec son plateau à la bordure arrondie et son pied élégant en tube inox, le bar donne une transparence et une versatilité à la pièce. De plus, son utilisation est variable selon les utilisateurs : bar, îlot, plan de travail...
Plan perspective du projet
Le plan perspective montre une version agencée de l'appartement avec la transformation de la cuisine et de la salle-de-bains. On voit l'aménagement plus aisé du salon, avec la porte de l'ex-économat condamnée. La pièce du bas est meublée comme un espace de bureau.
Travaux réalisés en 2021
Les travaux de la cuisine ont été réalisé rapidement. L'appartement s'est loué à la première visite, un vrai coup de coeur. Il n'a pas été nécessaire de transformer la salle-de-bains.


