007MAM
En bref
La MO souhaitait rénover entièrement la cuisine, l'espace repas et la salle-de-bains d'un appartement dans une maison villageoise de deux habitations. Le bâtiment est très ancien et avait déjà vécu plusieurs restructurations. Les équipements de la cuisine et de la salle-de-bains dataient de plusieurs décennies et rendaient la location du bien difficile. La maison suit les caractéristiques principales des bâtiments vernaculaire du valais central avec des murs amonts en maçonnerie très épais et l'avant en bois. La cuisine et la salle-de-bains se trouvant au nord de l'appartement, une des demandes était de rendre les espaces plus lumineux et accueillants pour tout un chacun. Cette demande est un défi, vu la petitesse des fenêtres qui donnent sur des ruelles étroites, ainsi que la hauteur du plafond qui est d'1,83 mètres. Les futurs locataires de ce 4.5 pièces de 100 m2 pouvant être une personne seule ou bien une famille de 5, il fallait garder le plus de versatilité possible dans les espaces.
La cuisine est composée de 4.5 éléments alignés sur le mur du fond. On y trouve des placards de rangements, les plaques en fonte, la ventilation, l'évier et un lave-vaisselle. Le frigo-congélateur est un meuble volant à gauche sur le dessin, isolé contre le redans du mur. La particularité de cette cuisine est le grand meuble en bois au centre du la pièce. Il contient des rangements, le four, un espace vide en son centre, servant de passe-plats. Certains placards sont accessibles depuis le côté table à manger.
Sur le plan à gauche on observe la forme particulière de la pièce. Une sorte de rectangle avec un cran rentrant d'un côté et une façade contre l'extérieure arrondie. Les murs extérieurs sont extrêmenent épais dus à l'ancienneté du bâtiment, construit sur sa partie arrière en maçonnerie. Les deux fenêtres de la pièce sont un peu écrasées dans cette épaisseur. Devant l'une, se trouve un grand radiateur électrique qui se doit de chauffer toute la pièce et devant l'autre il y a des rangements.




Variante 1

Un point important était d'implémenter une machine à laver le linge dans la cuisine ou salle-de-bains. Dans cette première variante, l'idée était de réduire les coûts de la transformation. Il fallait impérativement changer les appareils de la cuisine qui étaient usés.
Le plan de travail est changé, un nouvel évier et vitrocéram y sont implémentés. Le lave-vaisselle qui fonctionne encore reste, et un placard laisse place à la machine à laver le linge. Le grand meuble en bois est en très bon état, il est donc conservé, on y insert un nouveau four. Les rangements de la partie supérieure ne sont pas touchés.
La crédence à motifs est changée, pour ajouter une touche de modernité à la pièce.

Vue en perspective de la variante 1, avec en rouge les nouveaux éléments à implémenter.
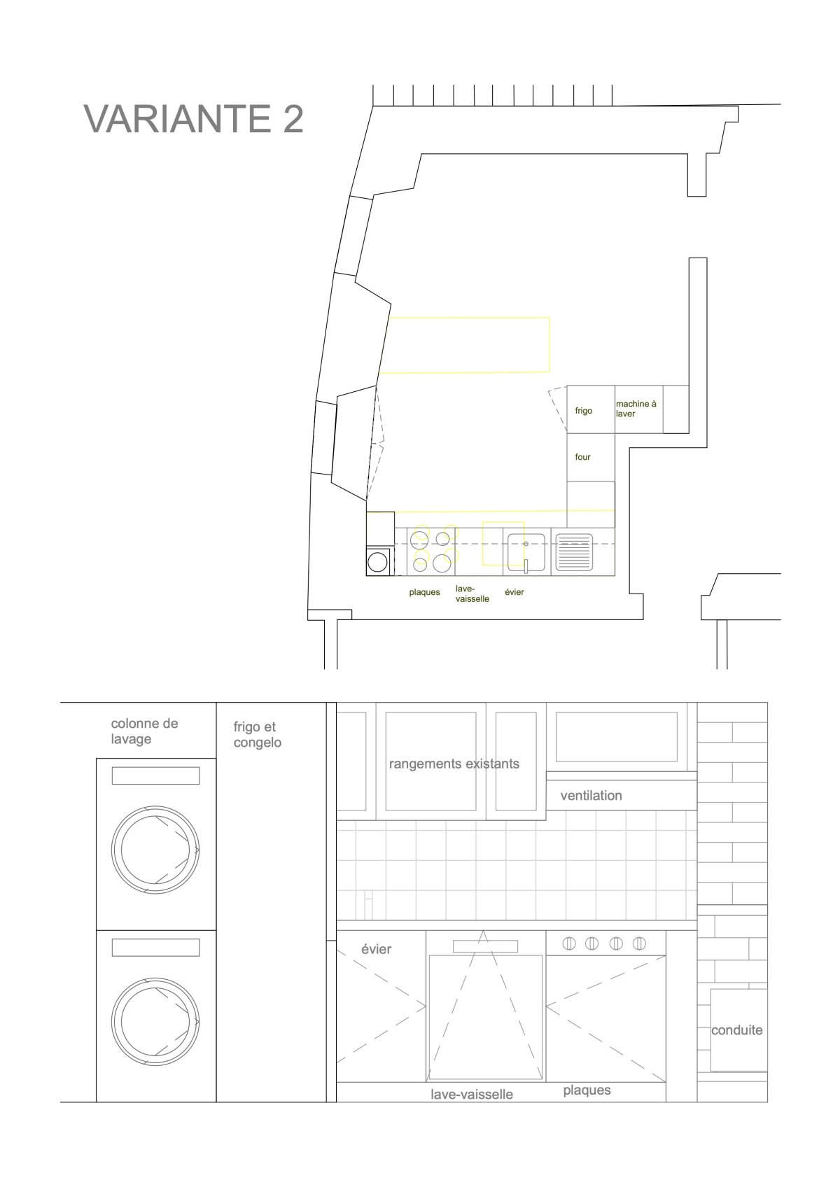
Variante 2

La deuxième proposition est une vue plus complète, un budget plus complet aussi. Dans un souci d'utilisation versatile de l'espace, le manque de place qui était disponible pour la table à manger était embêtant. Il fallait trouver une solution d'utilisation de l'espace plus efficiente.
Le concept : supprimer le grand meuble en bois et prolonger la cuisine le long du mur est. Cette décision engendre de multiples bénéfices : un bien plus grand espace repas, la machine à laver le linge est intégrée et cachée dans son propre meuble, il est même possible d'y mettre un sèche-linge avec, le frigo n'est plus un élément volant mais fait parti du système, il n'y a plus de "zone perdue" pour circuler.
Comme dans la variante 1, tous les appareils sont changés, la crédance et le plan de travail aussi. Les rangements de la partie supérieure et ceux sous la fenêtre sont conservés.
En jaune, tout ce qui sera supprimé.
En rouge, tout ce qui sera implémenté.

Cette axonométrie montre la répartition entre les appareils, les placards et les tiroirs disponibles dans la variante 2.

Une modélisation 3D avec une proposition d'agencement. Une grande table et des meubles de rangements supplémentaires peuvent être amenés par les locataires.

Ce point de vue montre la nouvelle cuisine comme bien plus grande, plus de rangements, plus de plans de travail. Aussi, la circulation est plus aisée lors de la préparation des repas.

Le grand placard qui cache la colonne de lavage permet une bien meilleure rentabilité de l'angle rentrant de la pièce

La MO se prononce pour la variante n°2 et les travaux débutent. Ici la construction des éléments pour le four, frigo, congélateur.

Les meubles contre le murs ont été conservés, la crédence et le plan de travail sont de couleur claire et unie. Les carreaux de crédence sont horizontaux et allongés pour une touche de modernité.

Le grand placard était intégré au mur, sol et plafond. Les meubles en eux-mêmes ont été déplacés au garage où ils servent pour le stockage.
Travaux terminés

A l'emplacement du meuble, la rangée de carreaux au sol a été changée pour une large bande de bois. Au lieu d'avoir la séparation physique du meuble passe-plat précédemment, on passe à une séparation visuelle, agrandissant l'espace.
Tous les nouveaux meubles sont revêtus de bois clair, s'intégrant harmonieusement avec les teintes existantes. Les nouvelles poignées sont les mêmes que celles sur les meubles existants.
Pour l'éclairage, plusieurs éléments ont été ajoutés : à la place du meuble contre le mur, un éclairage mural, un rail de LED sous les placards existants, 3 spots au plafond contre le mur du fond, et invisible sur ce point de vue, un rail de LED contre le mur au nord.

La salle-de-bains était restée dans son jus depuis plusieurs décennies.

Elle a comme avantage d'être très bien agencée malgré sa taille modeste.

Une baignoire, un WC, un grand lavabo, une douche, une fenêtre et radiateur électrique, laissent encore de la place pour un meuble de rangement.

Un carrelage sable est choisi pour remplacer celui à motifs. Tous les appareils verts sont remplacés par des blancs. Les vitres de la douche étaient en bon états, elles sont conservées. Afin de protéger le plafond des éclaboussures, il y a des panneaux imperméables au-dessus de la douche.
Sous la fenêtre, l'ancien radiateur électrique est remplacé par un nouveau, plus performant.


Un WC suspendu avec chasse intégrée est installé. Il est laissé aux locataire la possibilité d'aménager l'espace sous le lavabo par leur propre meuble
Le carrelage sable amène un environnement plus neutre visuellement.
Projet réalisé en 2023
